Trimble Hall is reserved for 184 upperclassmen and houses students in single rooms, in a suite setting.  There are primarily 5- or 6-person suites, each with shared bathrooms, living and dining areas and a kitchenette. The room rate for a single in Trimble is a premium rate.
 
360 Degree view of a bedroom in a Trimble suite
A 360 view of a typical room in Trimble Hall

 

360 Degree view of a common area in a Trimble suite
A 360 view of a typical common area in a Trimble Suite
Two students walking past the floor to ceiling windows of Trimble Forum.
Suite Breakdown
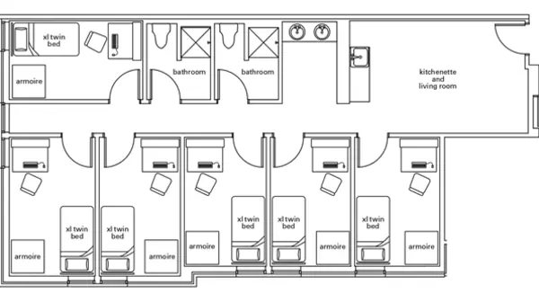
  • 13 suites have 6 single bedrooms, 2 bathrooms, 1 kitchen/living area
  • 17 suiteshave 5 single bedrooms, 1 bathroom, 1 kitchen/living area
A single in a Trimble suite
Amenities Per Student
  • 1 extra-long twin-size bed
  • Desk with drawers
  • Chair
  • Wardrobe
  • Bookshelf
  • Heat capable per room
Two suitemates study in the common area.
Common Amenities
  • Fully furnished living room
  • Kitchenette
  • Free Wi-Fi
  • Full free laundry and lounge/TV access on the floor
6-bedroom suite in Trimble Hall

This is a sample floor plan for illustrative purposes only. Actual floor plans may vary across our residence halls. All residence hall rooms include an extra-long twin bed, desk with chair, and a closet/armoire for each resident. In some cases the armoires are built into the structure of the room, while in others, the closet/armoire may be movable.

cropped view of the interactive campus map

Use the interactive campus map to locate this building on campus.